切换到宽版
  • 8阅读
  • 1回复

[奇观]呼和浩特武警公寓社区服务中心 / 大良造(DAIKOSHA)建筑与环境[28P] [复制链接]

上一主题 下一主题
在线jjybzxw

UID: 551814

 

发帖
212103
金币
612328
道行
2006
原创
2438
奖券
3260
斑龄
41
道券
1197
获奖
0
座驾
设备
摄影级
在线时间: 46426(小时)
注册时间: 2008-10-01
最后登录: 2025-12-19
只看楼主 倒序阅读 使用道具 楼主  发表于: 昨天 08:38
— 本帖被 huozm32831 执行加亮操作(2025-12-18) —



▲建成后武警公寓外景
项目背景
武警公寓社区活动中心是呼和浩特市新城区2022年老旧小区改造工程中的一处节点性改造扩建部分。位于内蒙古工业大学东侧武警总队公寓院内,现建设位置原来是一处彩钢车棚以及两处年久失修的危房,经多方研判决定拆除重建,以满足新的使用需求。
项目用地位置处于小区西北角,正对小区主干道路,在最后一排住宅楼的限定下形成L型建设用地,以其利用有限的用地范围布置新的自行车棚以及供社区对外服务、休闲活动和物业等功能需求。




▲原状照片
背景思考
社区文化建设的根本任务就是要形成社区精神,促进社区发展,从而最终实现社区居民生活质量的提高。社区文化建设并非单纯指一些娱乐性、群众性文化,而是一种整体的社区氛围,如同企业文化一样,对这个群体的所有人都起着凝聚力的作用。
而社区活动中心对强化居民的社区意识、凝聚力及对社区的归属感具有重要的作用,它可以促进社区文化的形成,进而引导居民自觉、自主地参与社区事务管理。同时,好的社区环境利于提升居民文化品位,引导人们追求真、善、美的内容,充分发挥文化对社区成员的思想和行为取向的引导作用。
设计思考
社区活动中心除了基本对外服务功能之外,更多承载社区成员休闲、积聚的意义。日常人们的行为会促成多个中心的形成,包括工作、娱乐、休闲等,社区中心相当于居家中心之外的较为近便的社交场所,是多功能复合的行为载体。现代城市中社区中心的服务半径更多是居家老年人的首选外部活动区域,在整体社会发展水平提高的推动下,其不应只是表面上的配套存在。社区活动用房这两年被大量改造和新建,特别是在内蒙地区,这两年的老旧小区改造当中实施很多,但大多基于最基本的功能需求,我们很难看到对其设置浓重的笔墨,更多是平淡的、乏味的、单调的。而在这次设计中我们期望体现出一种积极的、具有活力的表达,使处于其中的使用者能够获得一种被特殊关照的殊荣和场所感。
在大多数老旧小区改造的工程设计上,很少考虑到社区活动中心与社区的依存关系、空间关系以及给社区带来什么样的应用体验,再加上设计周期以及各方面条件的限制导致大多数社区活动室的设置流于形式,形同虚设,并未起到服务社区、关爱社区的作用,这也是此次设计中思考的问题,第一要力求满足功能要求;第二要适于社区空间上的梳理和规划;第三要促进社区成员的交流和娱乐,营造社区成员对社区活动空间的归属感。
落地成果





▲室外效果
活动中心一层设置了棋牌活动室、图书室、办公室两间,方便社区工作人员使用,同时也给居民提供了舒适的娱乐环境。




▲公共空间
通道和走廊通过自然光带来了一丝暖意和充足的光源。走廊尽头沿墙设置室外花园,绿植增添了生活气息和美感。通向二层的楼梯以造型独特的天窗营造了流线的导向。


▲入口大厅
二层设置较大的活动室,光线均匀,方便多种功能使用。同时二层设置通向屋顶平台的出口,屋顶设置可移动式的花箱和种植区域,供社区老年人交往活动以及实现养花和种植乐趣。


▲二层公共空间与户外空间


▲分析图
通过多种功能设置和丰富的空间层次,力图营造一种特征明确的、体验丰富的社区集聚场所,使社区零散的功能(包括物业办公室、自行车棚等)有序的整合在整体空间之中。



▲平面图

▲轴测图



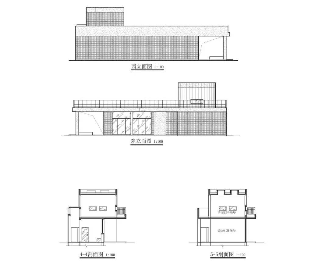
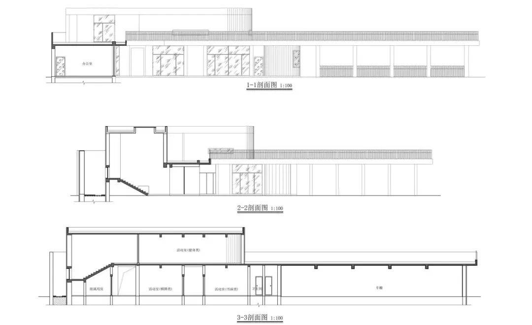
立面图及剖面图
项目名称:武警公寓社区服务中心
公司:大良造(DAIKOSHA)建筑与环境
项目完成年份:2022.12
建筑面积:507.56㎡
项目地点:内蒙古呼和浩特市新城区爱民街武警公寓院内
主创建筑师:徐强
摄影师,摄影版权:呼和浩特市大良造建筑设计咨询有限公司
设计团队:徐强/杜芳/张俊刚/王磊/杜龙龙/戚晓海
委托方:新城区物业局/海东办事处
结构设计:张俊刚/王磊
1条评分金币+18
huozm32831 金币 +18 - 昨天 16:16
山庄提示: 道行不够,道券不够?---☆点此充值☆
 
在线jjybzxw

UID: 551814


发帖
212103
金币
612328
道行
2006
原创
2438
奖券
3260
斑龄
41
道券
1197
获奖
0
座驾
设备
摄影级
在线时间: 46426(小时)
注册时间: 2008-10-01
最后登录: 2025-12-19
只看该作者 沙发  发表于: 昨天 08:39
武警公寓社区活动中心项目深度解析
一、项目背景与改造缘起
武警公寓社区活动中心是呼和浩特市新城区2022年老旧小区改造工程的重要节点项目。项目选址于内蒙古工业大学东侧武警总队公寓院内,原址为一处彩钢车棚及两处年久失修的危房。由于原有建筑存在安全隐患且功能落后,经多方研判后决定拆除重建,旨在满足新时代社区居民对文化、休闲及服务功能的多元化需求。
场地特性
项目用地处于小区西北角,正对主干道路,受最后一排住宅楼限制形成L型建设用地。这一特殊的场地条件促使设计团队在有限空间内进行高效布局,既要布置新的自行车棚等基础配套设施,又要整合社区对外服务、休闲活动及物业管理等复合功能。
二、设计理念与核心思考
社区文化建设的核心价值
社区文化建设的根本任务在于形成社区精神,促进社区发展,最终提升居民生活质量。它并非单纯的娱乐性文化,而是一种整体社区氛围,如同企业文化般对群体成员产生凝聚力。社区活动中心在此过程中扮演关键角色:
强化社区意识与归属感:通过提供固定活动场所,促进居民交流,增强对社区的认同感。
引导居民参与社区管理:活跃的社区文化能激发居民自觉参与社区事务的积极性。
提升居民文化品位:良好的环境氛围引导居民追求真善美,发挥文化对思想行为的导向作用。
设计的独特性思考
针对内蒙地区老旧小区改造中社区活动中心普遍存在的“功能单一、形式平淡”问题,本项目设计力求突破:
积极活力的场所表达:避免传统配套建筑的刻板印象,创造具有独特场所感的空间,让使用者感受到被特殊关照的荣誉感。
多重功能复合载体:不仅是简单的活动室,更是集社交、娱乐、服务于一体的多功能空间,尤其关注老年人的活动需求。
与社区的有机融合:强调活动中心与社区空间的关系梳理,注重用户体验,避免“形同虚设”的设计弊端。
三、落地成果与空间亮点
整体布局与功能分区
项目总建筑面积507.56㎡,通过巧妙设计在L型用地上实现了功能的有序整合:
一层:设置棋牌活动室、图书室及两间办公室。棋牌室和图书室为居民提供了舒适的日常娱乐与学习环境,办公室则方便社区工作人员就近服务。
二层:布置较大面积的多功能活动室,光线充足,可适应多种活动需求。同时设置通往屋顶平台的出口,屋顶平台配置可移动花箱和种植区域,为老年人提供交往、养花种草的乐趣。
空间设计亮点
入口大厅与公共空间:
通道和走廊通过自然光引入,营造温暖氛围并保证充足采光。
走廊尽头设置室外花园,绿植点缀增添生活气息与自然美感。
通向二层的楼梯采用造型独特的天窗设计,不仅提供采光,还通过光影变化营造流线导向感。
二层公共空间与户外延伸:
多功能活动室光线均匀柔和,适合开展各类集体活动。
屋顶平台作为重要的户外空间,通过可移动花箱和种植区实现“空中花园”概念,拓展了社区活动的维度。
分析图与技术图纸:
平面图清晰展示了各功能区域的布局逻辑及流线组织。
轴测图直观呈现了建筑形态与周边环境的关系。
立面图和剖面图则详细展示了建筑的外观设计、材料运用及空间层次。
四、项目意义与社会价值
功能整合的价值
项目成功将社区零散功能(物业办公室、自行车棚等)有序整合于整体空间中,形成了一个特征明确、体验丰富的社区集聚场所。这种整合不仅提高了土地利用率,更提升了社区服务的整体性和便捷性。
文化氛围的营造
通过精心的空间设计和功能设置,活动中心成为促进居民交流、凝聚社区情感的重要纽带。屋顶花园、多功能活动室等空间为居民提供了多样化的互动平台,有助于形成积极向上、和谐互助的社区文化氛围。
示范效应
作为2022年老旧小区改造的典范项目,武警公寓社区活动中心为后续同类改造提供了宝贵经验。其“以人为本”的设计理念、“功能复合”的空间组织以及“文化引领”的建设思路,对提升老旧小区居民生活质量具有重要启示意义。
五、项目团队与完成信息
项目名称:武警公寓社区服务中心
设计公司:大良造(DAIKOSHA)建筑与环境
主创建筑师:徐强
设计团队:徐强/杜芳/张俊刚/王磊/杜龙龙/戚晓海
结构设计:张俊刚/王磊
委托方:新城区物业局/海东办事处
项目完成年份:2022年12月
建筑面积:507.56㎡
项目地点:内蒙古呼和浩特市新城区爱民街武警公寓院内
总结
武警公寓社区活动中心通过对老旧危房的成功改造,不仅解决了小区基础设施落后的问题,更构建了一个集文化、休闲、服务于一体的现代化社区活动空间。该项目深刻践行了“社区文化建设”的核心理念,通过精心的设计思考和落地实施,有效提升了居民的生活品质和社区凝聚力,为呼和浩特市乃至内蒙古地区的老旧小区改造树立了新的标杆。其对空间利用效率、功能复合性及文化氛围营造的探索,为未来社区公共设施建设提供了 valuable 的参考范例。
1条评分金币+6
huozm32831 金币 +6 - 昨天 16:16
如何不发帖就快速得到金币道行
 
快速回复
限120 字节
认真回复加分,灌水扣分~
 
上一个 下一个